Luxury Pods                            

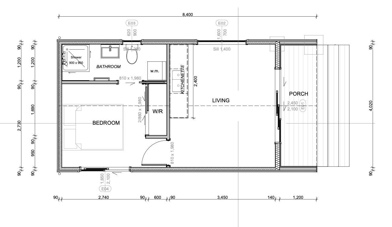
The Floorplan

30 sqm Total Floor Area + Deck |Solid Timber Subfloor | Timber Frame

The building will be constructed to industry-standard NZS3604

Luxury Pods from $199,000

FEATURES

  • Solid timber subfloor & timber frame

  • 5 Rib Colorsteel cladding, walls and roof

  • Covered Kwila deck with all around beautiful Cedar cladding

  • Fully insulated floor R 3.0, walls R2.8 and ceiling R4.5

  • Thermally broken windows/doors with Low E max

  • Vaulted ceiling height 3.1m

  • UV coated plywood lining with black trims

  • Engineered timber flooring, wool carpet and vinyl

  • High quality wardrobe with soft close drawers and sliding doors

  • Custom made / joinery made kitchen

  • 7 LED lights indoor and 3 outdoor, 11 double-plugs, 6 light switches

  • Bathroom with 900x900 shower, flushing toilet, vanity with mirror, towel heater, vinyl flooring

  • Lower spec options and different layouts available on request

EXCLUDES

Steps to deck |Drapes/blinds | Connection of services at your site | Pile Foundation. Please ask us for an estimate.

DESIGN TO IMPRESS.

BUILT FOR RETURNS.

 Get in touch today

Contact us today to discuss your new home.

Contact us