Luxury Pods - Council-Free

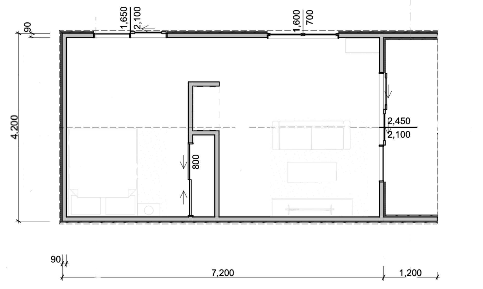
The Floorplan

30 sqm Total Floor Area + Deck |Solid Timber Subfloor | Lightweight Steel Frame

Now available for only $124,900

The building has been constructed to industry-standard NZS3604

FEATURES

  • Solid timber subfloor

  • Lightweight Steel Frame or Timber frame

  • 5 Rib Colorsteel cladding, walls and roof

  • Covered Kwila deck with all around beautiful Cedar or Larch cladding

  • Fully insulated floor R 3.0, R2.8 walls and R4.0 ceiling

  • Thermally broken windows/doors and Low E max

  • Vaulted ceiling height 3.1m

  • UV coated plywood lining with black trims

  • White-washed plywood lining with silver trims

  • Engineered timber flooring or carpet

  • High quality wardrobe with soft close drawers and sliding doors

  • Mini kitchenette from joinery including 126l fridge/freezer and space for a microwave (no cooktop or sink)

  • 6 LED lights indoor and 3 outdoor, 11 double-plugs, internet plug, one dimmer, 6 light switches

  • Smoke alarm

  • Lower spec options and different layouts available on request

EXCLUDES

Steps to deck |Drapes/blinds | Connection of services at your site | Pile Foundation. Please ask us for an estimate.

DESIGN TO IMPRESS.

BUILT FOR RETURNS.

 Get in touch today

Contact us today to discuss your new home.

Contact us